Villa on the sea in Sardinia (Arbatax).

  • Deal Type
  • For Sell
  • Тype
  • Villa/Cottage
  • Area
  • 140 m2
  • Floors
  • -
  • Rooms
  • -
Villa on the sea in Sardinia (Arbatax).
The villa enjoys a unique and incomparable location less than 50 meters from the sea, in front of one of the most beautiful beaches of the area with fine white sand and crystal clear water, it is surrounded by a private garden, with a delightful terrace overlooking the sea where it is You can spend relaxing moments or admire the view breathing the sea breeze.
The villa is tastefully finished, is in excellent maintenance conditions and is equipped with every comfort: heating system with radiators, outdoor shower, barbecue, terrace with sea view.
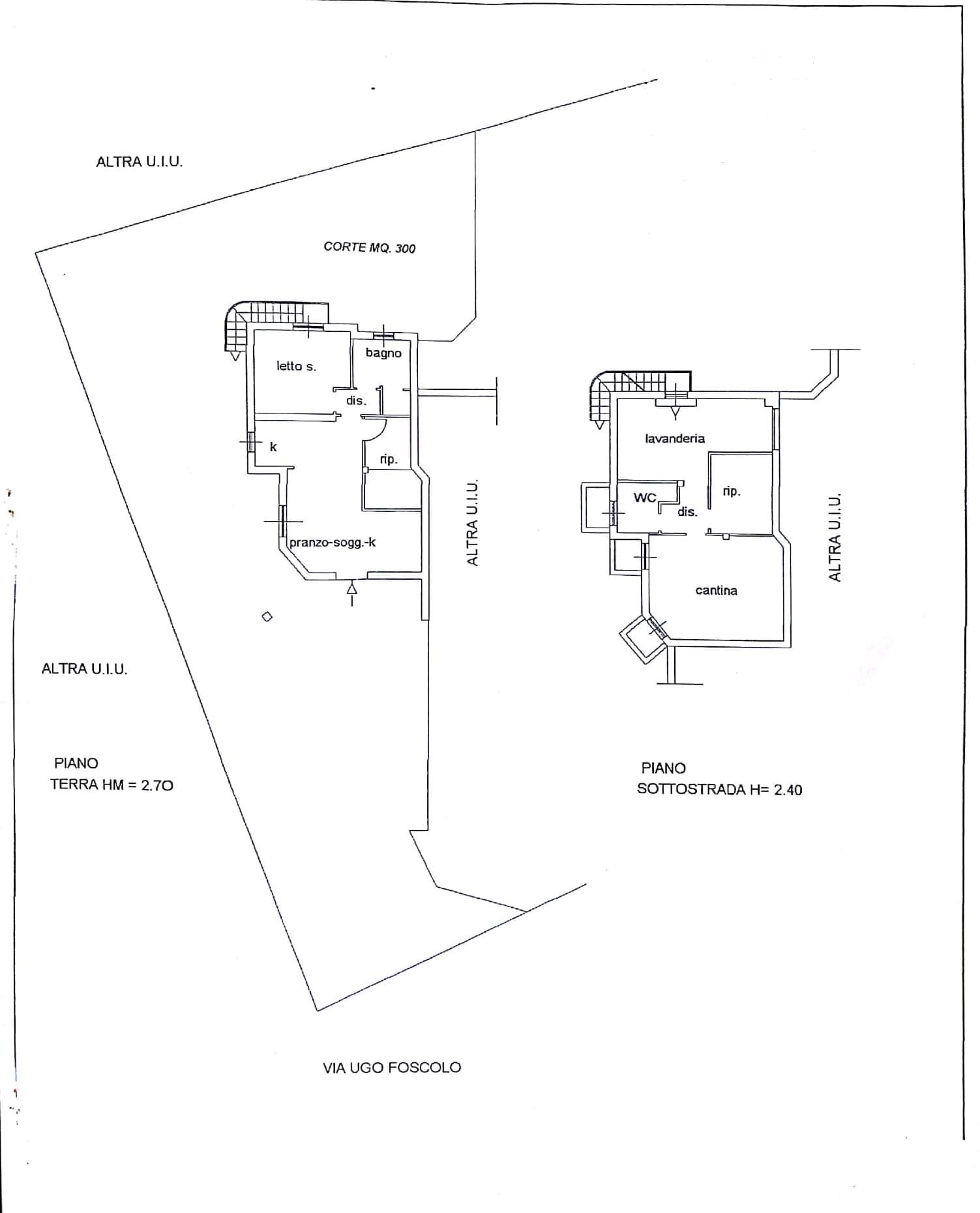
On the ground floor there are two bedrooms, a bathroom and a living area with an American kitchen, an ideal solution to create a single room for the living area, which overlooks the outdoor terrace on which a pergola has been built with fine wooden beams solid masses and shading drapes, decidedly chic and with a strong aesthetic impact.
The basement has an independent entrance and the same internal distribution of the ground floor and has been expertly finished and furnished.
The property also has 2 comfortable outdoor parking spaces.
Energy class and Energy Performance Index are awaiting certification.
  • Location:
Country:Italy
State:Sardegna
City:Arbatax
Property Type:Villa/Cottage
Commission:15 000 €
Possible Bargaining:Yes
  • Characteristics
Living Area (m2):35
Total Area (m2):140

500 000 €

587 874 $
44 234 440 ₽

On the map

Other properties of this seller