For sale Villa Marouette in Fréjus, France

  • Deal Type
  • For Sell
  • Тype
  • Villa/Cottage
  • Area
  • 393 m2
  • Floors
  • -
  • Rooms
  • 2
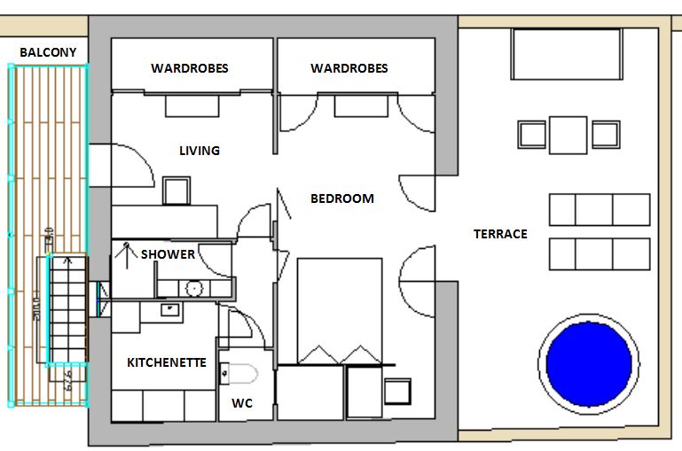
For sale Villa Marouette in Frejus, a commune in the southeast of France in the Provence-Alpes-Côte d'Azur region, the department of Var, Draguignan district, the administrative center of the canton of Frejus. This is one of the most beautiful villas available on the bay of Saint Raphael. The villa has 393 square meters. 2 Bathrooms: Shower room in the villa - toilet, shower; shower room in the guest house - toilet, shower. 2 bedrooms, 6 sleeping places. Guest house: bedroom - 1 double bed, 160 cm wide double bed on the ground floor in the guest house. Bedroom in the villa - 1 double bed, double bed 160 cm. Garden room in the villa - 1 sofa bed / which becomes a double bed 160 cm wide. Wonderful 180-degree sea view, right on the beaches of the marina, restaurants. Large terraces for communicating with friends and celebrating great parties. And you will have your own pier right in front of the house in a private pier. The garden is 100% protected and very private, albeit close to everything. Stylish and modern in the old way. The old fishermen's house, which was turned into a modern villa with old charm. On the one hand - the endless Mediterranean Sea with fantastic night views of Saint-Raphael and Frejus, and on the other hand - a cozy garden with a small pool and a guest house. It's a bit of the Caribbean Sea on the south coast of France. Cannes, Saint-Tropez, Saint Raphael, Eze, Nice are nearby 30-45 minutes. Aix-en-Provence is just an hour's drive from the villa. The baker is 5 minutes away, and within 200 meters there are at least 20 restaurants. The nearest is just 5 meters right in the harbor. This is an ideal place for those who love nature, travel and are in a place that makes you feel forever on vacation. Here you can meet friends and let them retire to the guest house. Three units of property are also ideal for renting and can generate significant income that will cover all your expenses.
Price 1 350 000 euros
  • Location:
Country:France
State:Provence-Alpes-Côte d'Azur
City:Fréjus
Property Type:Villa/Cottage
  • Characteristics
Rooms:2
Living Area (m2):393

1 350 000 €

1 583 954 $
130 059 098 ₽

On the map

Other properties of this seller